$725,000
4012 N Clark Street
Chicago, IL, 60613
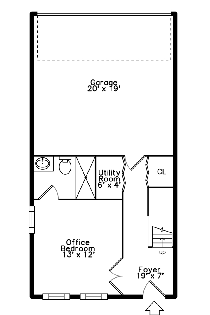
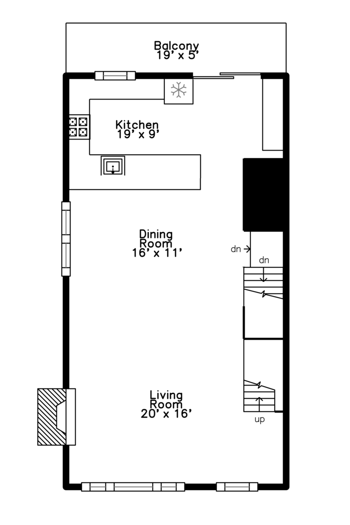
Sunny updated brick townhome with large open rooms and tall ceilings create a wonderful place to call home! The corner location allows for more windows with East, South and West exposure. This home has a large outdoor deck with sliding glass door just off the kitchen for convenient access. The updated kitchen has Quartz counters, GE Cafe appliances, full height backsplash and a custom buffet cabinet with wine storage and glass fronts. The living room has refinished hardwood floors, crown molding and a gas fireplace with mantel. The spacious primary bedroom has a walk-in closet, updated double vanity with quartz counter and Kohler fixtures. Both secondary bedrooms have in-suite baths. Pella windows, newer furnace, air conditioner, water heater and roof make this home move in ready and worry free. The front yard is gated with a covered patio and turf grass. The large 2-car garage is attached and is large enough for extra storage. This townhome community features a one of a kind beautiful courtyard to enjoy with friends and neighbors. Short walk to Blaine school, Southport retail and the Brown or Red line train.
Property Details
Price:
$725,000
MLS #:
MRD12628091
Status:
Active
Beds:
3
Baths:
3
Type:
Condo
Neighborhood:
chilakeview
Listed Date:
Apr 24, 2026
Year Built:
2001
Schools
School District:
299
Elementary School:
Blaine Elementary School
Middle School:
Blaine Elementary School
High School:
Lake View High School
Interior
Appliances
Range, Microwave, Dishwasher, Refrigerator, Washer, Dryer, Disposal, Stainless Steel Appliance(s), Humidifier
Bathrooms
3 Full Bathrooms
Cooling
Central Air
Fireplaces Total
1
Flooring
Hardwood, Carpet
Heating
Natural Gas, Forced Air
Interior Features
1st Floor Full Bath, Walk-In Closet(s), High Ceilings, Open Floorplan, Quartz Counters
Laundry Features
Upper Level, Washer Hookup, In Unit, In Kitchen
Exterior
Common Walls
End Unit
Construction Materials
Brick
Exterior Features
Balcony
Garage Spaces
2
Lot Features
Corner Lot
Parking Features
Asphalt, Garage Door Opener, Yes, Other, Attached, Garage
Parking Spots
2
Parking Total
2
Roof
Rubber
Window Features
Screens
Financial
HOA Fee
$278
HOA Fee Frequency
Monthly
HOA Includes
Lawn Care, Snow Removal
Tax Year
2024
Taxes
$11,064
Debra Dobbs is one of Chicago’s top realtors with more than 41 years in the real estate business.
More About DebraMortgage Calculator
Map
Community
- Address4012 N Clark Street Chicago IL
- CityChicago
- CountyCook
- Zip Code60613
Subdivisions in Chicago
- 1400 Museum Park
- 212 East
- 30 E Huron
- 5000 East End Building
- 9North Townhomes
- Acme Lofts
- Acorn Lofts
- Ada Street Lofts
- Addison Commons Condos
- Adler Place
- Admirals Pointe
- Ainslie Manor
- Aldine Court
- Ambassador House
- Americana Towers
- Anchor Lofts
- Andersonville
- Aquitania
- Arcadia Terrace
- Archer Lofts
- Armour Square
- Artesian Courts
- Ashland Towers
- Austin Village
- Avenue East
- Back of the Yards
- Bank Note Place
- Barry by the Lake
- Bartletts
- Beach Point Tower
- Beacon Lofts
- Beacon Square
- Bella Como
- Belmont Central
- Belmont Heights
- Belvedere
- Beverly Hills
- Beverly Pointe
- Beverly Woods
- Bicycle Station Lofts
- Big Oaks
- Birchtree Manor
- Birchwood Beach Condos
- Block Y
- Bloomingdales
- Bodine Building
- Bookbinders Row
- Bowmanville
- Brainerd
- Bridgeport Collection
- Bridgeport Village
- Brighton of Lincoln Park
- Bronzeville
- Bryant House
- Bryn Mawr Place
- Buckingham Residences
- Bucktown
- Budlong Woods
- Buena Park
- Burnham Park Plaza
- Camden Court
- Campus Hyde Park
- Canaryville
- Capitol Hill Lofts
- Caravel
- Catalpa Gardens
- Catalpa Terrace
- Chandelier Factory Lofts
- Chandler
- Chatham Club
- Chatham Park Place
- Chess Lofts
- Chicago Place
- Citiview Condos
- City Club
- City Towne Lofts
- Clinton Complex
- Clinton Street Lofts
- Coles
- Columbus on the Park
- Commonwealth
- Commonwealth Plaza
- Concord at City Center
- Constellation
- Cornelia by the Lake
- Cornelia Court
- Cornell Square
- Cornell Village
- Cottage Grove Heights
- Cullerton Station
- Cumberland Crossing
- Dakota Lofts
- Darien Condominium
- Dearborn Park
- Dearborn Park II
- Dearborn Tower
- Dearborn Village
- Delaware Place
- Depaul
- Dickenson House
- Domain Lofts
- Drake Tower
- Dunham Park
- Eaglebrook
- East Pilsen
- East Point Condominiums
- East Ridge Point Condos
- East Village
- Edgebrook
- Edgemoor Park Condos
- Edgewater Beach
- Edgewater Beach Apts
- Edgewater Plaza
- Edison Park Place
- Egandale Townhomes
- El Lago
- Eldson
- Elm at Clark Condos
- Elysees
- Embassy Club
- Emerson Point
- Erie on the Park
- Estes Manor Homes
- Fair Elms
- Fairbanks at Cityfront
- Faulkner House
- Fernwood
- Filmworks Lofts
- Folio Square
- Fordham
- Forest Glen
- Forest Villa
- Franklin Lofts
- Fremont Place Rowhouses
- Fulton Court
- Fulton House
- Fulton Place
- Fulton Station
- Galewood
- Gallery 400
- Gladstone Park
- Glencar Estates
- Glenlake
- Gold Coast Galleria
- Gotham Lofts
- Graceland West
- Grand Ohio
- Grand Orleans
- Grand Plaza
- Granville Beach
- Granville Terrace
- Green Street Lofts
- Gresham
- Hale Lofts
- Hamlin Park
- Hampden Green
- Hampton House
- Hanover House
- Harbor Point
- Harbor Pointe
- Harbor View
- Harper Place
- Hartland Park
- Hawthorne Place
- Heartbreak Lofts
- Heather Oaks
- Hemingway House
- Heritage at Millennium Park
- Hermitage
- Hollywood Towers
- Homan Square
- Humboltd Condos
- Imperial Towers
- Independence Park
- Indian Village
- Indian Woods
- Ingleside Comdominiums
- Irving Park Manor
- Jackson Park Highlands
- Jackson Tower
- James House
- Jazz on the Boulevard
- Jefferson Tower
- Jeffery Manor
- Joffrey Tower
- Karmatage
- Kelvyn Park
- Kilmer House
- Kinetic Lofts
- Kingsbury on the Park
- Kinzie Park
- Kinzie Park Midrise
- Kinzie Park Tower
- Kinzie Station
- Lake Meadows
- Lake Park Plaza
- Lake Point Tower
- Lake Shore Place
- Lake Terrace Condominiums
- Lakeside on the Park
- Lakeview Station
- Lakewood Balmoral
- Lancaster
- Landmark Village
- LaSalle Private Residences
- Lawndale
- Library Tower
- Lincoln Commons
- Lincoln Park Towers
- Little Village
- Lofts on West Hubbard
- Logan Square
- Lowell House
- Lunt Court Condominiums
- Malibu
- Malibu East
- Manors of Leland
- Marina City
- Marina Towers
- Marquee
- Marquette Park
- Marshfield Lofts
- Marynook
- Mayfair
- Mckinley Gardens
- Metropolis
- Metropolis Condominiums
- Metropolitan Place
- Michigan Avenue Towers
- Midway View
- Mies Van Der Rohe
- Monroe Manor
- Montclaire Gardens
- Montgomery
- Moser Lofts
- Museum Park
- Museum Park Lofts
- Museum Park Place
- Museum Park Tower
- Museum Park Tower III
- Museum Park Tower Iv
- New Eastside
- New York Condominiums
- Newberry Plaza
- Newport Condominiums
- North Beach Lofts
- North Damen Square Condos
- North Mayfair
- North Park Village
- Northwest Point
- Northwest Terrace
- Number 10 Lofts
- Oak Club Condos
- Oakfield West
- Odyssey Lofts
- Old Irving
- Old Town
- Old Town Square
- Old Town Village East
- Olympia Centre
- Olympia Lofts
- One Magnificent Mile
- One Museum Park West
- One River Place
- Ontario Place
- Ontario Place Residences
- Ontario Street Lofts
- Opera Lofts
- Orchard Park
- Palmolive Building Landmark
- Paper Place Lofts
- Paramount Lofts
- Parc Chestnut
- Park 1500 Lofts
- Park Alexandria
- Park Astor
- Park Edgewater
- Park Harbor
- Park Manor
- Park Millennium Condos
- Park Newberry
- Park Place
- Park Place Tower
- Park Tower
- Park View East
- Park West Condos
- Parkshore
- Parkshore Cooperative
- Parkview Condominiums
- Pearson on the Park
- Penthouse Lofts
- Pill Hill Valley
- Pilsen
- Plaza 32
- Plaza 440 Private Residences
- Plaza on DeWitt
- Point East Condominiums
- Pope Building Lofts
- Portage Park Condos
- Prairie Avenue Lofts
- Prairie District Homes
- Prairie House
- Prairie Pointe
- Printers Row
- Printers Row Lofts
- Printers Square
- Promenade
- Pueblo Commons
- Quadrangle Condos
- Randolph Place
- Ravenswood
- Regal Lofts
- Regatta
- Renaissance
- Renaissance Place
- Residences at River East
- Residences at Riverbend
- Ridgemoor Estates
- Ridgewood Flats
- Ritchie Tower
- River East
- River North
- River North Commons
- River Place on the Park
- River Plaza
- River Village
- River West Village Lofts
- Riverbend Condominiums
- Rivers Edge
- Riverview East
- Riverview West
- Rogers Park
- Roosevelt Square
- Roscoe Village
- Roscoe Village/Lakeview
- Rosemont Place
- Rosemoor
- Royalton
- Royalton Towers
- Sandburg Village
- Sauganash
- Sauganash Park
- Sauganash Village
- Schorsch Forestview
- Schorsch Village
- Scottsdale
- Sexton Lofts
- Shakespeare Court
- Sheffields
- Sheldon Heights
- Sheridan Park
- Sheridan Point
- Sheridan Shore Courts
- Sheridan Shores
- Shoreline Park
- Shoreline Towers
- Sierra Lofts
- Silver Tower
- Singer Lofts
- Skybridge
- Smith Park Commons
- South Commons
- South Edgebrook
- Southport Corridor
- Southshore
- Springfield Place
- St Johns Park
- St Paul Condos
- Stanford Courts
- State Place Tower
- State Tower
- Statesman
- Sterling
- Stratford Place
- Stratford South Commons
- Streeterville
- Superior 110
- Sutton Place
- The 3500 Club
- The Barry
- The Brewster
- The Bristol
- The Chandler
- The Columbian
- The Coronado
- The Edge
- The Estes North Shore
- The Flats on Monroe
- The George on Washington
- The Grant
- The Legacy at Millennium Park
- The Madison
- The Marquee
- The Montrevelle
- The New York
- The Pinnacle
- The Pointe
- The Residences at 330
- The Sexton
- The Terraces
- The Tower Residences at Prairie District Homes
- The Towers
- The Transportation Building
- The Verde
- The Waterford
- The Wellington
- The Whitney
- Thorndale Beach North
- Three Sixty West
- Tiara
- Tower Lofts
- Trevi Square
- Tri-Taylor
- Tribune Tower Residences
- Trump Tower Chicago
- Ukrainian Village
- Union Lofts
- Union Park Lofts
- Union Square Lofts
- University Commons
- University Park Condos
- University Station
- University Village
- Vanguard Lofts
- Venetian
- Verandas on Harlem
- Vinery Lofts
- Vision on State
- Vista Homes
- Wabash Flats
- Warwick
- Water Tower Residences
- Wells Street Tower
- West Beverly
- West Chesterfield
- West Loop Condominiums
- West Town
- Westgate Lofts
- Westhaven Park
- Westlawn
- Westwalker
- Wheelworks Lofts
- Wicker Park
- Wildwood
- Willow Court
- Willows
- Winchester Condominiums
- Winchester Hood Garden Homes
- Winhood
- Winston Towers
- Wolcott Village
- Wrightwood
Similar Listings Nearby
Property Summary
- 4012 N Clark Street Chicago IL is a Condo for sale in Chicago, IL, 60613. It is listed for $725,000 and features 3 beds, 3 baths, and has approximately 0 square feet of living space, and was originally constructed in 2001. The average price per square foot for Condo listings in Chicago is $380. The average listing price for Condo in Chicago is $627,888. To schedule a showing of MLS#mrd12628091 at 4012 N Clark Street in Chicago, IL, contact your Compass | Debra Dobbs | The Dobbs Group agent at 3123074909.

Copyright 2026. All rights reserved.
4012 N Clark Street
Chicago, IL

























