$1,399,000
1719 W Foster Avenue
Chicago, IL, 60640
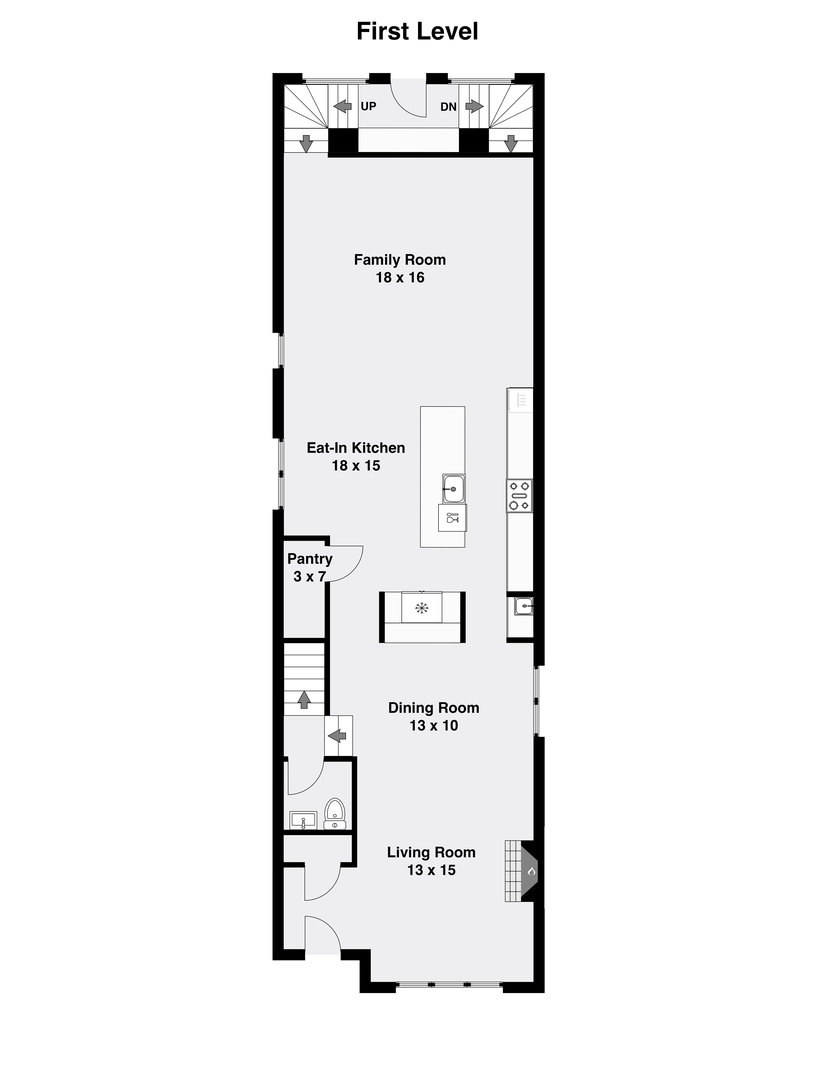
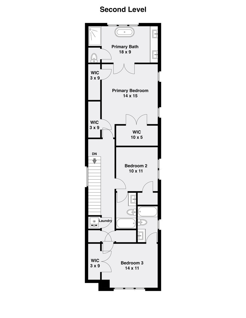
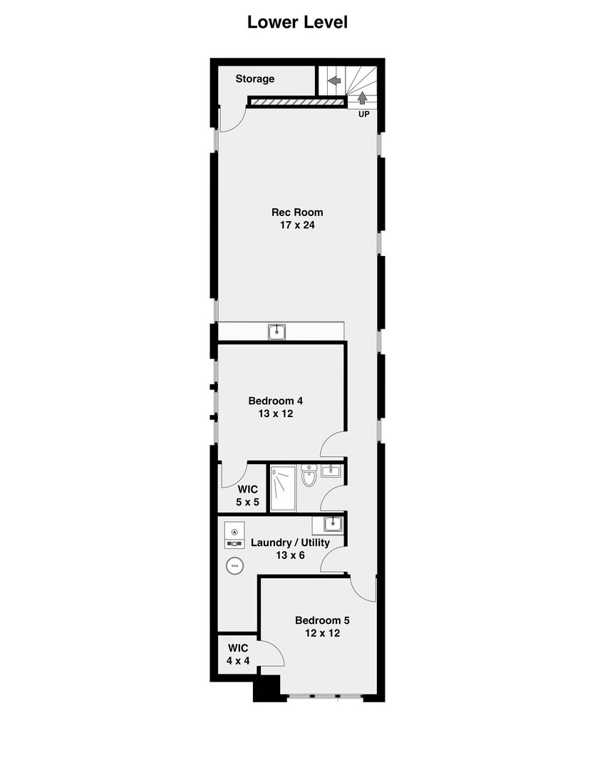
Impeccable 5 bedroom, 4.1 bath new construction single-family home steps from Clark Street in Andersonville. Spacious floor plan featuring design forward interiors with great consideration given to fixtures and finish materials. Open concept living/dining area with direct vent gas fireplace and beautiful oak hardwood flooring. Chef quality eat-in kitchen perfect for entertaining features Sub-Zero/Thermador appliances, oversized island, and butler pantry. Adjoining family room with ample windows overlooking the backyard. Rear mudroom with built-in storage. Primary bedroom with tons of closet space and spa like ensuite bath. Finished lower level includes spacious recreation room with full wet bar, two bedrooms, full bath, utilities/second laundry hookup, and radiant heated LVP flooring throughout. Vaulted ceilings in upper bedrooms, skylights, 8′ doors, statement lighting, heated flooring, custom closets, and more! Extra long lot with back patio and a detached two-car garage with roof deck offer plenty of outdoor space. Close to restaurants, entertainment, shopping, public transportation, parks, and other great neighborhoods. Exceptional quality home by top developer. Staged photos are from the home next door which is the same floor plan and comparable finishes.
Property Details
Price:
$1,399,000
MLS #:
MRD12527636
Status:
Active
Beds:
3
Baths:
5
Type:
Single Family
Neighborhood:
chiuptown
Listed Date:
Dec 4, 2025
Finished Sq Ft:
3,790
Year Built:
2025
Schools
School District:
299
Interior
Appliances
Microwave, Dishwasher, Refrigerator, Washer, Dryer, Disposal, Wine Refrigerator, Cooktop, Oven, Range Hood, Humidifier
Bathrooms
4 Full Bathrooms, 1 Half Bathroom
Cooling
Central Air
Fireplaces Total
1
Flooring
Hardwood
Heating
Natural Gas, Forced Air, Sep Heating Systems – 2+
Laundry Features
Upper Level, Multiple Locations
Exterior
Community Features
Park, Curbs, Sidewalks, Street Lights, Street Paved
Construction Materials
Fiber Cement
Exterior Features
Roof Deck
Parking Features
Garage Door Opener, Yes, Garage Owned, Detached, Garage
Parking Spots
2
Roof
Asphalt
Financial
HOA Frequency
Not Applicable
HOA Includes
None
Tax Year
2023
Debra Dobbs is one of Chicago’s top realtors with more than 41 years in the real estate business.
More About DebraMortgage Calculator
Map
Current real estate data for Single Family in Chicago as of Dec 05, 2025
2,751
Single Family Listed
75
Avg DOM
212
Avg $ / SqFt
$482,564
Avg List Price
Community
- Address1719 W Foster Avenue Chicago IL
- CityChicago
- CountyCook
- Zip Code60640
Subdivisions in Chicago
- 1400 Museum Park
- 212 East
- 30 E Huron
- 5000 East End Building
- 9North Townhomes
- Acme Lofts
- Acorn Lofts
- Ada Street Lofts
- Addison Commons Condos
- Adler Place
- Admirals Pointe
- Ainslie Manor
- Aldine Court
- Ambassador House
- Americana Towers
- Anchor Lofts
- Andersonville
- Aquitania
- Arcadia Terrace
- Archer Lofts
- Armour Square
- Artesian Courts
- Ashland Towers
- Austin Village
- Avenue East
- Back of the Yards
- Bank Note Place
- Barry by the Lake
- Bartletts
- Beach Point Tower
- Beacon Lofts
- Beacon Square
- Bella Como
- Belmont Central
- Belmont Heights
- Belvedere
- Beverly Hills
- Beverly Pointe
- Beverly Woods
- Bicycle Station Lofts
- Big Oaks
- Birchtree Manor
- Birchwood Beach Condos
- Block Y
- Bloomingdales
- Bodine Building
- Bookbinders Row
- Bowmanville
- Brainerd
- Bridgeport Collection
- Bridgeport Village
- Brighton of Lincoln Park
- Bronzeville
- Bryant House
- Bryn Mawr Place
- Buckingham Residences
- Bucktown
- Budlong Woods
- Buena Park
- Burnham Park Plaza
- Camden Court
- Campus Hyde Park
- Canaryville
- Capitol Hill Lofts
- Caravel
- Catalpa Gardens
- Catalpa Terrace
- Chandelier Factory Lofts
- Chandler
- Chatham Club
- Chatham Park Place
- Chess Lofts
- Chicago Place
- Citiview Condos
- City Club
- City Towne Lofts
- Clinton Complex
- Clinton Street Lofts
- Coles
- Columbus on the Park
- Commonwealth
- Commonwealth Plaza
- Concord at City Center
- Constellation
- Cornelia by the Lake
- Cornelia Court
- Cornell Square
- Cornell Village
- Cottage Grove Heights
- Cullerton Station
- Cumberland Crossing
- Dakota Lofts
- Darien Condominium
- Dearborn Park
- Dearborn Park II
- Dearborn Tower
- Dearborn Village
- Delaware Place
- Depaul
- Dickenson House
- Domain Lofts
- Drake Tower
- Dunham Park
- Eaglebrook
- East Pilsen
- East Point Condominiums
- East Ridge Point Condos
- East Village
- Edgebrook
- Edgemoor Park Condos
- Edgewater Beach
- Edgewater Beach Apts
- Edgewater Plaza
- Edison Park Place
- Egandale Townhomes
- El Lago
- Eldson
- Elm at Clark Condos
- Elysees
- Embassy Club
- Emerson Point
- Erie on the Park
- Estes Manor Homes
- Fair Elms
- Fairbanks at Cityfront
- Faulkner House
- Fernwood
- Filmworks Lofts
- Folio Square
- Fordham
- Forest Glen
- Forest Villa
- Franklin Lofts
- Fremont Place Rowhouses
- Fulton Court
- Fulton House
- Fulton Place
- Fulton Station
- Galewood
- Gallery 400
- Gladstone Park
- Glencar Estates
- Glenlake
- Gold Coast Galleria
- Gotham Lofts
- Graceland West
- Grand Ohio
- Grand Orleans
- Grand Plaza
- Granville Beach
- Granville Terrace
- Green Street Lofts
- Gresham
- Hale Lofts
- Hamlin Park
- Hampden Green
- Hampton House
- Hanover House
- Harbor Point
- Harbor Pointe
- Harbor View
- Harper Place
- Hartland Park
- Hawthorne Place
- Heartbreak Lofts
- Heather Oaks
- Hemingway House
- Heritage at Millennium Park
- Hermitage
- Hollywood Towers
- Homan Square
- Humboltd Condos
- Imperial Towers
- Independence Park
- Indian Village
- Indian Woods
- Ingleside Comdominiums
- Irving Park Manor
- Jackson Park Highlands
- Jackson Tower
- James House
- Jazz on the Boulevard
- Jefferson Tower
- Jeffery Manor
- Joffrey Tower
- Karmatage
- Kelvyn Park
- Kilmer House
- Kinetic Lofts
- Kingsbury on the Park
- Kinzie Park
- Kinzie Park Midrise
- Kinzie Park Tower
- Kinzie Station
- Lake Meadows
- Lake Park Plaza
- Lake Point Tower
- Lake Shore Place
- Lake Terrace Condominiums
- Lakeside on the Park
- Lakeview Station
- Lakewood Balmoral
- Lancaster
- Landmark Village
- LaSalle Private Residences
- Lawndale
- Library Tower
- Lincoln Commons
- Lincoln Park Towers
- Little Village
- Lofts on West Hubbard
- Logan Square
- Lowell House
- Lunt Court Condominiums
- Malibu
- Malibu East
- Manors of Leland
- Marina City
- Marina Towers
- Marquee
- Marquette Park
- Marshfield Lofts
- Marynook
- Mayfair
- Mckinley Gardens
- Metropolis
- Metropolis Condominiums
- Metropolitan Place
- Michigan Avenue Towers
- Midway View
- Mies Van Der Rohe
- Monroe Manor
- Montclaire Gardens
- Montgomery
- Moser Lofts
- Museum Park
- Museum Park Lofts
- Museum Park Place
- Museum Park Tower
- Museum Park Tower III
- Museum Park Tower Iv
- New Eastside
- New York Condominiums
- Newberry Plaza
- Newport Condominiums
- North Beach Lofts
- North Damen Square Condos
- North Mayfair
- North Park Village
- Northwest Point
- Northwest Terrace
- Number 10 Lofts
- Oak Club Condos
- Oakfield West
- Odyssey Lofts
- Old Irving
- Old Town
- Old Town Square
- Old Town Village East
- Olympia Centre
- Olympia Lofts
- One Magnificent Mile
- One Museum Park West
- One River Place
- Ontario Place
- Ontario Place Residences
- Ontario Street Lofts
- Opera Lofts
- Orchard Park
- Palmolive Building Landmark
- Paper Place Lofts
- Paramount Lofts
- Parc Chestnut
- Park 1500 Lofts
- Park Alexandria
- Park Astor
- Park Edgewater
- Park Harbor
- Park Manor
- Park Millennium Condos
- Park Newberry
- Park Place
- Park Place Tower
- Park Tower
- Park View East
- Park West Condos
- Parkshore
- Parkshore Cooperative
- Parkview Condominiums
- Pearson on the Park
- Penthouse Lofts
- Pill Hill Valley
- Pilsen
- Plaza 32
- Plaza 440 Private Residences
- Plaza on DeWitt
- Point East Condominiums
- Pope Building Lofts
- Portage Park Condos
- Prairie Avenue Lofts
- Prairie District Homes
- Prairie House
- Prairie Pointe
- Printers Row
- Printers Row Lofts
- Printers Square
- Promenade
- Pueblo Commons
- Quadrangle Condos
- Randolph Place
- Ravenswood
- Regal Lofts
- Regatta
- Renaissance
- Renaissance Place
- Residences at River East
- Residences at Riverbend
- Ridgemoor Estates
- Ridgewood Flats
- Ritchie Tower
- River East
- River North
- River North Commons
- River Place on the Park
- River Plaza
- River Village
- River West Village Lofts
- Riverbend Condominiums
- Rivers Edge
- Riverview East
- Riverview West
- Rogers Park
- Roosevelt Square
- Roscoe Village
- Roscoe Village/Lakeview
- Rosemont Place
- Rosemoor
- Royalton
- Royalton Towers
- Sandburg Village
- Sauganash
- Sauganash Park
- Sauganash Village
- Schorsch Forestview
- Schorsch Village
- Scottsdale
- Sexton Lofts
- Shakespeare Court
- Sheffields
- Sheldon Heights
- Sheridan Park
- Sheridan Point
- Sheridan Shore Courts
- Sheridan Shores
- Shoreline Park
- Shoreline Towers
- Sierra Lofts
- Silver Tower
- Singer Lofts
- Skybridge
- Smith Park Commons
- South Commons
- South Edgebrook
- Southport Corridor
- Southshore
- Springfield Place
- St Johns Park
- St Paul Condos
- Stanford Courts
- State Place Tower
- State Tower
- Statesman
- Sterling
- Stratford Place
- Stratford South Commons
- Streeterville
- Superior 110
- Sutton Place
- The 3500 Club
- The Barry
- The Brewster
- The Bristol
- The Chandler
- The Columbian
- The Coronado
- The Edge
- The Estes North Shore
- The Flats on Monroe
- The George on Washington
- The Grant
- The Legacy at Millennium Park
- The Madison
- The Marquee
- The Montrevelle
- The New York
- The Pinnacle
- The Pointe
- The Residences at 330
- The Sexton
- The Terraces
- The Tower Residences at Prairie District Homes
- The Towers
- The Transportation Building
- The Verde
- The Waterford
- The Wellington
- The Whitney
- Thorndale Beach North
- Three Sixty West
- Tiara
- Tower Lofts
- Trevi Square
- Tri-Taylor
- Tribune Tower Residences
- Trump Tower Chicago
- Ukrainian Village
- Union Lofts
- Union Park Lofts
- Union Square Lofts
- University Commons
- University Park Condos
- University Station
- University Village
- Vanguard Lofts
- Venetian
- Verandas on Harlem
- Vinery Lofts
- Vision on State
- Vista Homes
- Wabash Flats
- Warwick
- Water Tower Residences
- Wells Street Tower
- West Beverly
- West Chesterfield
- West Loop Condominiums
- West Town
- Westgate Lofts
- Westhaven Park
- Westlawn
- Westwalker
- Wheelworks Lofts
- Wicker Park
- Wildwood
- Willow Court
- Willows
- Winchester Condominiums
- Winchester Hood Garden Homes
- Winhood
- Winston Towers
- Wolcott Village
- Wrightwood
Similar Listings Nearby
Property Summary
- 1719 W Foster Avenue Chicago IL is a Single Family for sale in Chicago, IL, 60640. It is listed for $1,399,000 and features 3 beds, 5 baths, and has approximately 3,790 square feet of living space, and was originally constructed in 2025. The current price per square foot is $369. The average price per square foot for Single Family listings in Chicago is $212. The average listing price for Single Family in Chicago is $482,564. To schedule a showing of MLS#mrd12527636 at 1719 W Foster Avenue in Chicago, IL, contact your Compass / The Debra Dobbs Group agent at 3123074909.

1719 W Foster Avenue
Chicago, IL











































